CAFSTUDIO
ARQUITECTURA Y URBANISMO
S O S T E N I B L E

1 / 4
2 / 4
3 / 4
3 / 4

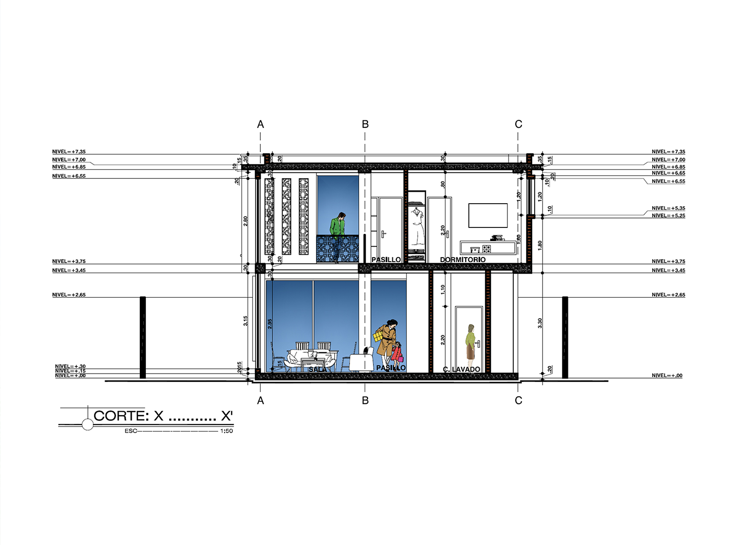
Nombre del proyecto: Vivienda IM02
Ubicación: Santo Domingo de los Tsáchilas
Año de diseño: 2021
Año de construcción: 2022
Área construída: 213,21 m2
Área de terreno: 420 m2
Planificación y diseño: Arq. Catalina Fernández

Descripción del proyecto: La vivienda se proyecta en una urbanización privada, con un terreno de 14 m de frente por 30 m de fondo. El encargo fue una vivienda de distribución convencional, con el área social en planta baja, y los dormitorios en planta alta. Partimos de la idea de espacios permeables, los espacios en planta baja son de un uso abierto y flexible, no existen separaciones físicas, salvo en el área de despensa - lavandería y el estudio. La sala principal constituye el corazón de la casa y está articulada verticalmente a través de un puente perimetral en planta alta, que conecta ambas zonas, formando visuales hacia el exterior y permitiendo la iluminación natural. Crear recorridos es uno de nuestros principales objetivos a la hora de diseñar un proyecto, lograr espacios abiertos y que a su vez permitan la privacidad, jerarquizando las fachadas con elementos estructurales como volados y muros constituyen decisiones conceptuales para lograr un mejor funcionamiento del espacio a través de la forma.